En Venta
OPORTUNIDAD VENTA DEPARTAMENTO 3 DORMITORIOS, VISTA AL RIO. COCHERA. SAN LORENZO 1000
Código: 150012

ARG, San Lorenzo 1067, S2000 Rosario, Santa Fe, Argentina, Rosario, Santa Fe, Argentina.

USD195.000

Departamento
Compartir esta Propiedad

Descripción de la Propiedad

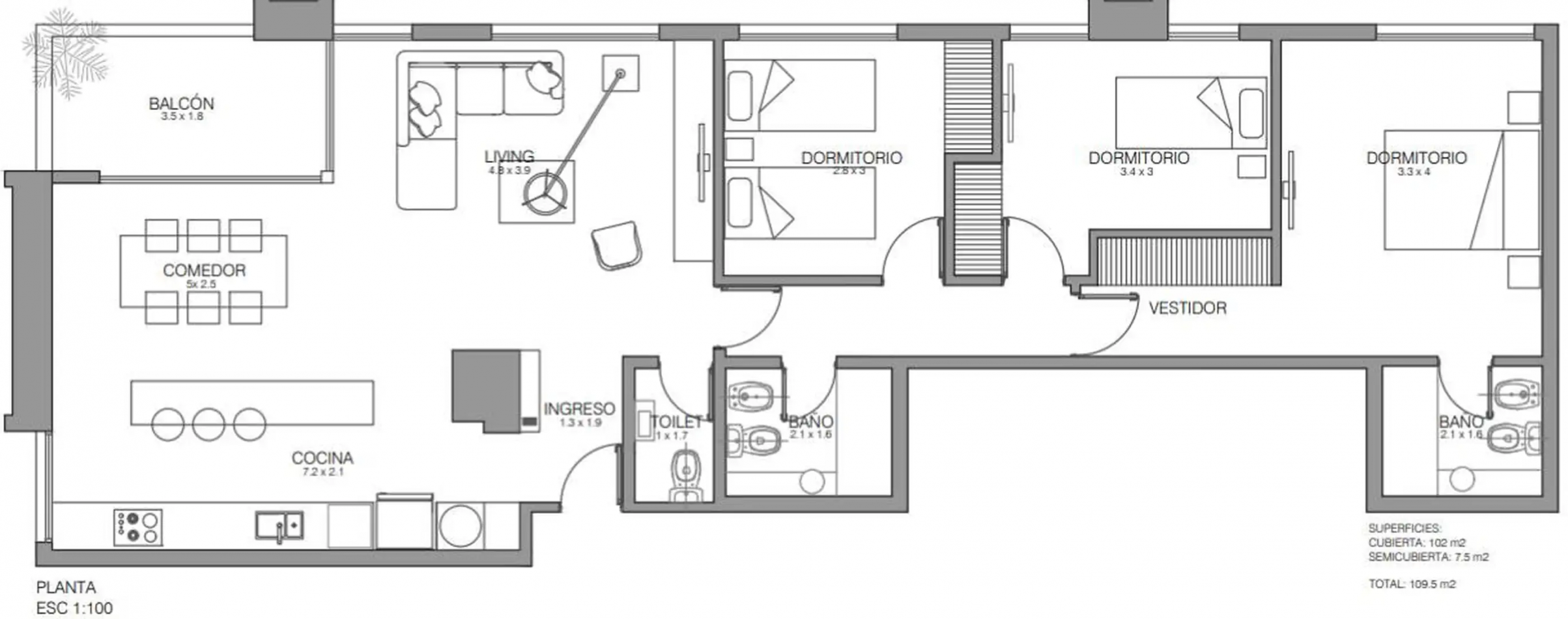
San Lorenzo 1067. Piso 16, con cochera.

Ubicado estratégicamente en el centro de la ciudad, nos encontramos con este increíble departamento de 3 dormitorios reciclado a nuevo en su totalidad.
Diseño y calidad excepcionales, esta unidad cuenta con 3 amplios dormitorios, un toilette y dos baños completos.
El ambiente de uso social es amplio living comedor con salida al balcón que mira al Norte y da a la calle. Este sector se encuentra semi integrado a la cocina por medio de una espectacular isla.
Baño de uso social.
Desde el pasillo distribuidor, se acede a un baño completo y a los tres dormitorios.
El dormitorio principal se encuentra en suite y tiene vestidor.
Los restantes dormitorios cuentan con placares empotrados con frente corredizo.

El departamento cuenta con vista al río, tiene orientación norte y ha sido 100% reciclado a nuevo.


Cochera: La cochera está incluida en el precio.

Entrega en mayo del 2025.

CI MABEL GARDIOL MAT 1844

Mas detalles